Αναρτήθηκε στην ιστοσελίδα του Εφετείου Λάρισας η περιγραφή του χώρου στον οποίο θα εκδικαστεί η υπόθεση του πολύνεκρου σιδηροδρομικού δυστυχήματος των Τεμπών, με απόφαση της προέδρου Εφετών κ. Μ. Λιάνου.
Η δίκη θα ξεκινήσει στις 23 Μαρτίου του 2026, στο πρώην συνεδριακό κέντρο του Πανεπιστημίου Θεσσαλίας, στην πανεπιστημιούπολη «Γαιόπολις».

Η δίκη θα γίνει στην αίθουσα συνεδριάσεων και στο εδώλιο θα κάτσουν 36 κατηγορούμενοι που είναι αντιμέτωποι, ανά περίπτωση, με τις κατηγορίες:
- της επικίνδυνης παρέμβασης στη συγκοινωνία μέσων σταθερής τροχιάς με ενδεχόμενο δόλο, με επικίνδυνες για την ασφάλεια της συγκοινωνίας πράξεις, η πράξη δε αυτή είχε ως αποτέλεσμα: α) τον θάνατο μεγάλου αριθμού ανθρώπων, β) τη βαριά σωματική βλάβη μεγάλου αριθμού ανθρώπων και τη σημαντική βλάβη σε εγκαταστάσεις κοινής ωφέλειας, γ) τη δυνατότητα κινδύνου περισσότερων προσώπων και δ) τη δυνατότητα κοινού κινδύνου για ξένα πράγματα, τελεσθείσας και κατ’ εξακολούθηση και από κοινού,
- της ανθρωποκτονίας από αμέλεια κατά συρροή,
- της βαριάς σωματικής βλάβης από αμέλεια, από υπόχρεο κατά συρροή,
- της απλής σωματικής βλάβης από αμέλεια, από υπόχρεο κατά συρροή και
- της παράβασης καθήκοντος τελεσθείσας και από κοινού.
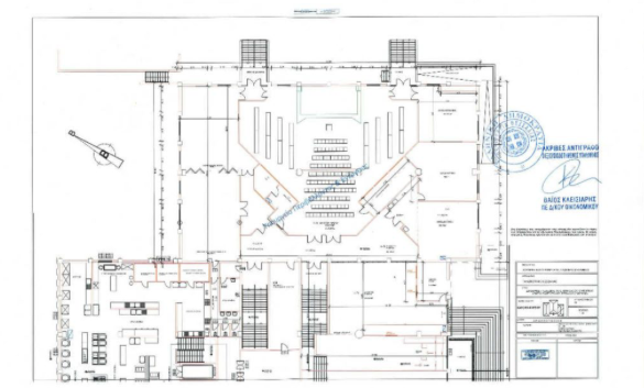
Η αίθουσα, όπου θα εγκατασταθούν η έδρα του δικαστηρίου, τα έδρανα των δικηγόρων, καθώς και οι θέσεις των κατηγορουμένων είναι συνολικής επιφάνειας 283,75 τ.μ.
Ως επιπρόσθετη αίθουσα συνεδριάσεως για την εκδίκαση της υπόθεσης, η απόφαση ορίζει τον εκ δεξιών της εισόδου κύριο χώρο υποδοχής του ανωτέρω συνεδριακού κέντρου, εμβαδού 109,57 τ.μ., όπου θα εγκατασταθούν θέσεις ακροατηρίου με οθόνες και το φουαγιέ του συνεδριακού κέντρου, εμβαδού 82,58 τ.μ., όπου επίσης θα εγκατασταθούν θέσεις ακροατηρίου με οθόνες.
Η πράξη της κ. Λιάνου θα κοινοποιηθεί στους δικηγορικούς συλλόγους της περιφέρειας του Εφετείου Λάρισας και θα αναρτηθεί στην είσοδο του δικαστικού μεγάρου Λάρισας και στο συνεδριακό κέντρο στο συγκρότημα «Γαιόπολις».

